MASTERING HVAC SYSTEM DUCT DESIGN FOR MAXIMUM EFFICIENCY

INTRODUCTION TO HVAC SYSTEM DUCT DESIGN
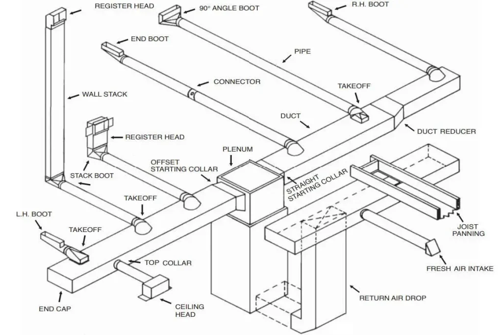
Proper hvac system duct design is crucial for achieving maximum energy efficiency and comfort in any building. Whether you are constructing a new facility or upgrading an existing one, a well-planned duct system can reduce energy costs, improve airflow, and enhance overall HVAC performance. By focusing on HVAC System Duct Design, building owners and engineers ensure that heating, ventilation, and air conditioning systems operate at peak efficiency while maintaining compliance with building codes.

KEY PRINCIPLES OF HVAC SYSTEM DUCT DESIGN
Effective HVAC System Duct Design starts with understanding the basic principles of airflow, pressure, and temperature control. Engineers must consider duct sizing, layout, and materials to optimize energy consumption. A poorly designed duct system can lead to uneven temperatures, increased energy bills, and unnecessary strain on HVAC equipment. Integrating proper insulation and minimizing bends in the ductwork are essential strategies for efficient HVAC System Duct Design.

ENERGY SAVING STRATEGIES IN HVAC SYSTEM DUCT DESIGN
One of the primary goals of HVAC System Duct Design is energy conservation. Properly sized ducts reduce air leakage, which can significantly lower electricity consumption. Using high-quality materials and sealing all joints and connections ensures minimal energy loss. Additionally, implementing advanced simulation software during HVAC System Duct Design helps predict airflow patterns and optimize system performance, saving both energy and money.

CHOOSING THE RIGHT DUCT MATERIALS
Material selection plays a vital role in HVAC System Duct Design. Galvanized steel, aluminum, and flexible ducts are commonly used, each with advantages depending on the building’s requirements. Proper material choice reduces maintenance costs, improves airflow, and supports long-term system efficiency. During the HVAC System Duct Design process, engineers must evaluate environmental factors and durability to select the most suitable duct materials.

COMPLIANCE AND HVAC SYSTEM DUCT DESIGN
Regulatory compliance is a significant aspect of HVAC System Duct Design. Building codes and industry standards dictate minimum requirements for airflow, insulation, and ventilation. Accurate HVAC System Duct Design ensures adherence to these standards, avoiding costly penalties and guaranteeing occupant safety. Incorporating energy-efficient practices into the design process also supports sustainability initiatives.

ADVANCED TOOLS FOR HVAC SYSTEM DUCT DESIGN
Modern technology has revolutionized HVAC System Duct Design. Tools such as computer-aided design (CAD) software and building information modeling (BIM) allow engineers to create precise layouts, simulate airflow, and optimize duct sizing. By leveraging these tools, professionals can enhance the efficiency of HVAC System Duct Design while minimizing errors and project delays.

COMMON CHALLENGES IN HVAC SYSTEM DUCT DESIGN
Despite technological advancements, HVAC System Duct Design faces challenges such as space limitations, complex building layouts, and balancing multiple system requirements. Skilled engineers address these issues by conducting thorough site assessments and careful planning. Avoiding shortcuts in HVAC System Duct Design is essential to ensure long-term system performance and energy efficiency.

MAINTENANCE CONSIDERATIONS IN HVAC SYSTEM DUCT DESIGN
A sustainable HVAC System Duct Design includes planning for regular maintenance. Accessible duct routes, proper insulation, and well-sealed joints make cleaning and inspections easier. Proactive maintenance reduces system downtime, prolongs equipment life, and ensures continuous energy savings, making it an integral part of HVAC System Duct Design best practices.

CONCLUSION
Mastering HVAC System Duct Design is essential for energy efficiency, cost savings, and building comfort. From material selection to compliance and advanced tools, every aspect contributes to the system’s overall performance. A well-executed HVAC System Duct Design ensures that HVAC systems operate smoothly, reduce operational costs, and maintain a healthy indoor environment. Professionals who prioritize precise HVAC System Duct Design set themselves apart in delivering efficient and sustainable building solutions.